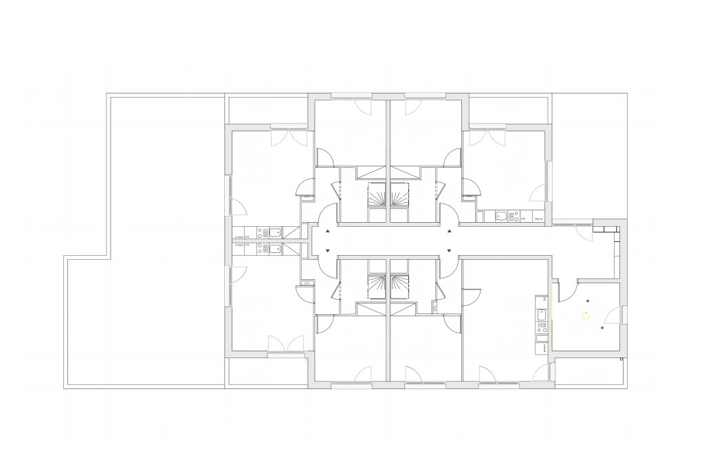
/ 12 LOGEMENTS + BUREAUX /

/ PROGRAMME: 12 LOGEMENTS+BUREAUX A SOISSONS(02) / SURFACE: 858 M² / PHASE: PRO-DCE / MOA: CLESENCE / BUDGET: 1 250 000€ HT