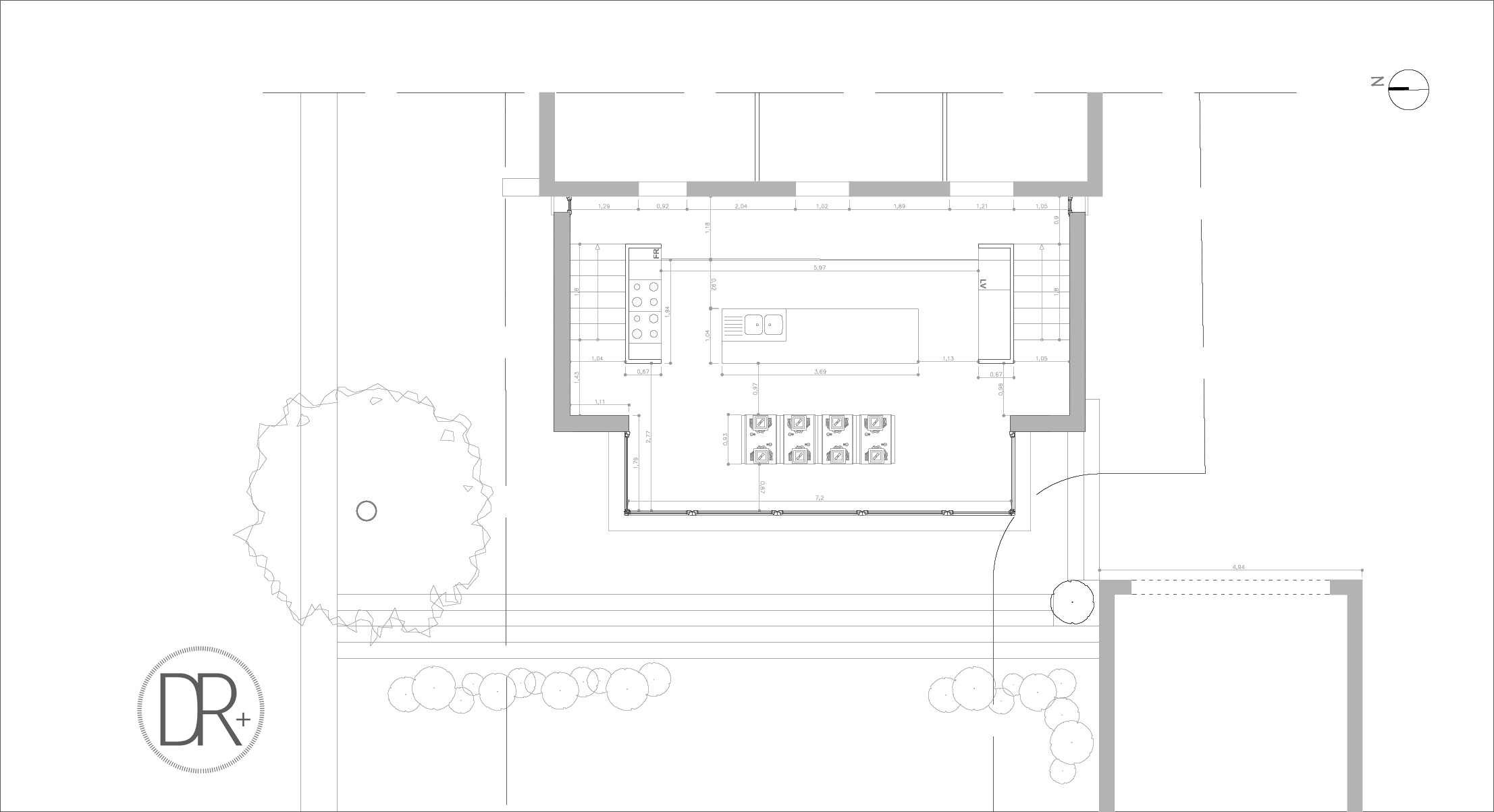
Extension -cuisine sur jardin

/  PROGRAMME: EXTENSION À USAGE DE CUISINE ET SALLE À MANGER  /  SURFACE: 70 M²  /  DATE: ETUDE DE FAISABILITÉ - ESQUISSE

D+R-AR1 D+R-AR2

planPROJET