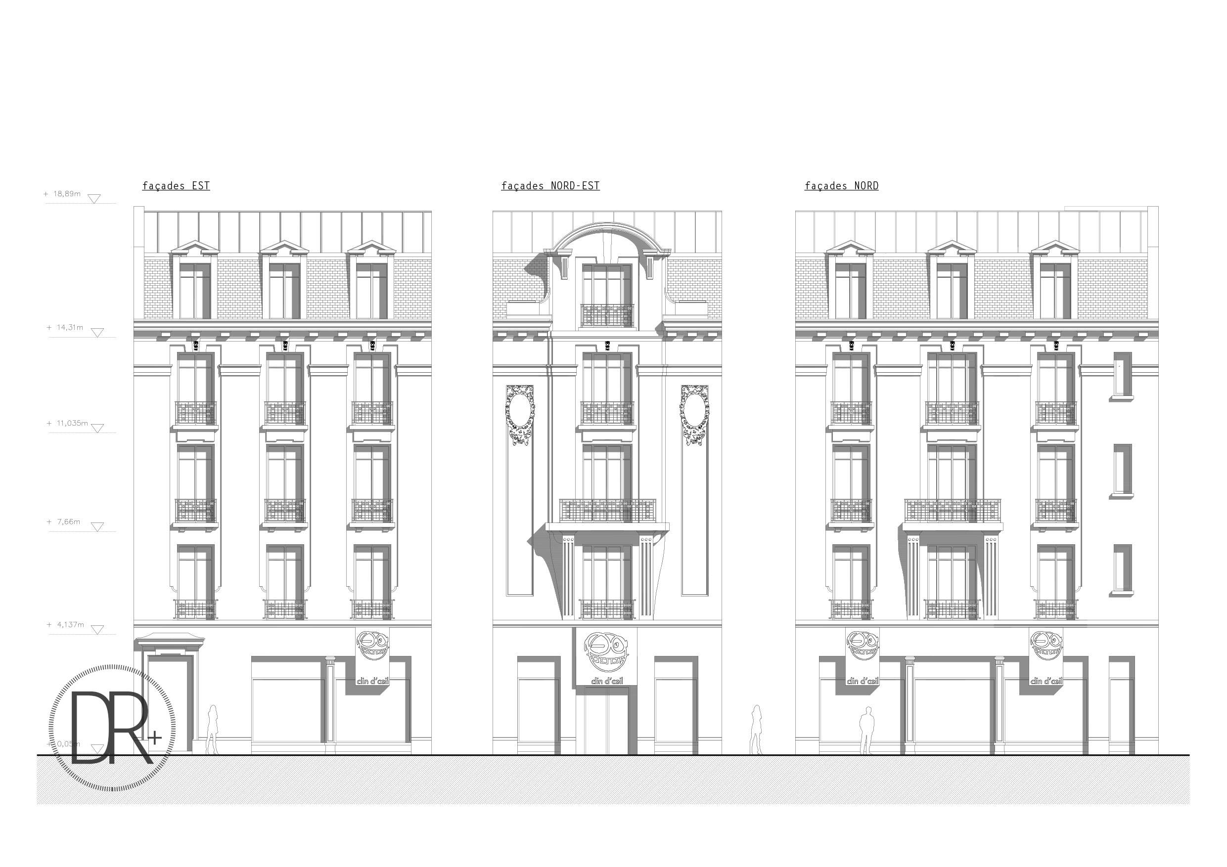
/ 8 LOGEMENTS – BEFFROI / LOGEMENTS COLLECTIFS / PROGRAMME: 8 LOGEMENTS EN RÉHABILITATION / SURFACE: 1300 M² / DATE: DP DÉPOSÉ