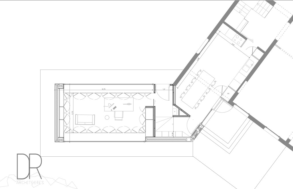
Extension bureaux MAISONS INDIVIDUELLES / PROGRAMME: EXTENSION ET RÉAMÉNAGEMENT D’UNE MAISON / SURFACE: 45 M² / DATE: 2015 - ESQUISSE